实地拍摄
59.8 万
5340.0元/㎡
首付及税费详请咨询经纪人
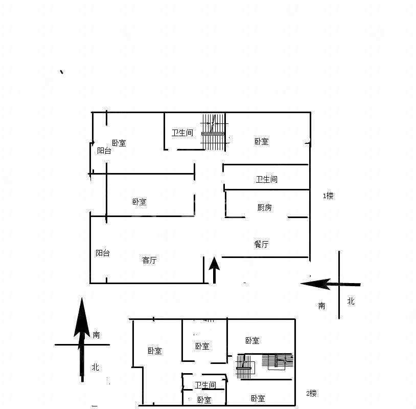
7室3厅3卫
高层(共7层)
112㎡
精装修
南
2015年竣工/普通住宅

















足不出户 专家讲解
| 交易信息 | 产权性质商品房住宅 | 物业类型普通住宅 |
| 产权年限暂无 | ||
| 参考预算首付17万,月供1880元 | ||
| 发布信息 | 发布公司 宜春安心地产 | |
| 营业执照91360900MA38EN5Q33 | ||
| 发布时间2025-11-10 | ||
小区均价
小区户数
暂无
物业费用
暂无
暂无
绿化率
暂无
小区户型
地中海精装复试公寓洋房高层
小区设施
游乐场,凉亭娱乐场跑道人车分流
生活配套
天虹超市医院银行公交车都很便利
房屋品质
小区环境优美,人车分流
小区不足
你比较拥挤,楼间距不是很宽