实地拍摄
140 万
11112.0元/㎡
首付及税费详请咨询经纪人
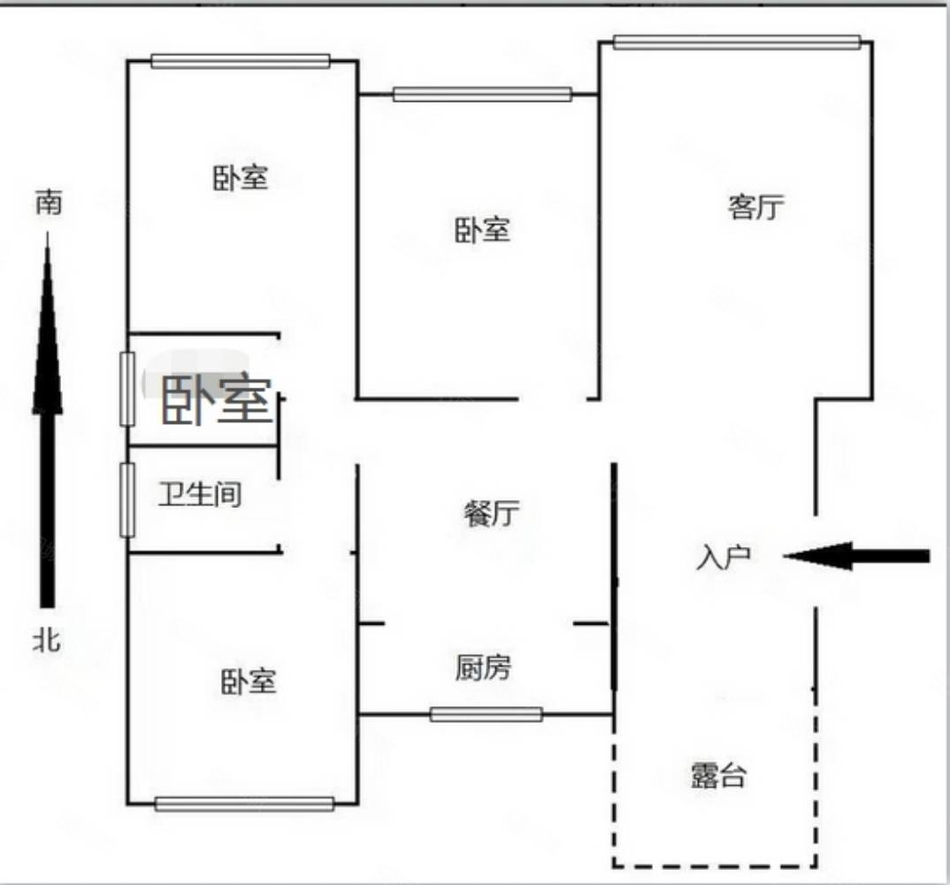
7室2厅4卫
低层(共6层)
126㎡
毛坯
南北
2016年竣工/普通住宅


















足不出户 专家讲解
| 交易信息 | 产权性质商品房住宅 | 物业类型普通住宅 |
| 产权年限70年产权 | 房本年限满二年 | |
| 参考预算首付42万,月供4401元 | ||
| 发布信息 | 发布公司 宜春安心地产 | |
| 营业执照91360900MA38EN5Q33 | ||
| 发布时间2025-10-02 | ||
小区均价
小区户数
暂无
物业费用
暂无
暂无
绿化率
暂无
小区户型
小区有多层和高层,多层为一梯两户,南北通透的户型
其他描述
多层0.6元,高层1.2元
小区设施
小区有凉亭,花园,绿地率大
生活配套
1公里到万达广场大型购物中心
小区不足
电梯高层楼间距比较窄