该房源属于经纪人历史代理
89.8 万
7676.0元/㎡
首付及税费详请咨询经纪人
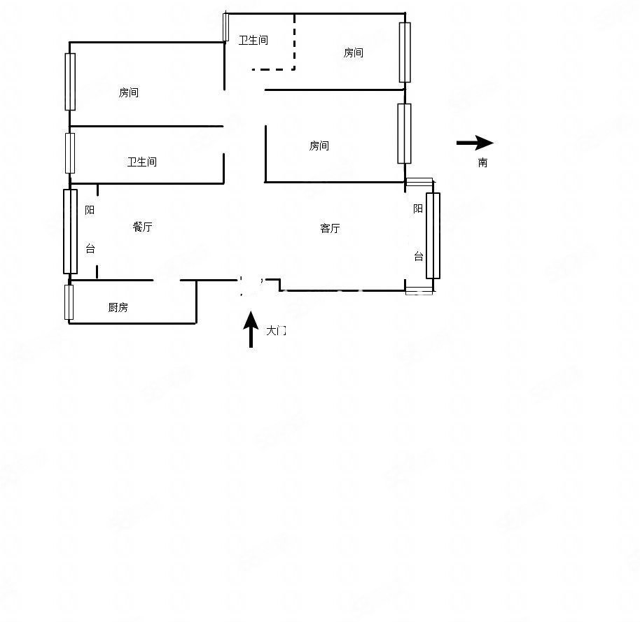
3室2厅2卫
低层(共17层)
117㎡
精装修
南北
2016年竣工/普通住宅









| 交易信息 | 产权性质商品房住宅 | 物业类型普通住宅 |
| 产权年限70年产权 | 房本年限满二年 | |
| 唯一住房是 | ||
| 参考预算首付26万,月供2823元 | ||
| 发布信息 | 发布公司 宜春安心地产 | |
| 营业执照91360900MA38EN5Q33 | ||
| 发布时间2025-09-13 | ||
小区均价
小区户数
暂无
物业费用
暂无
暂无
绿化率
暂无