该房源属于经纪人历史代理
  74.8 万
 
                        6234.0元/㎡
                    
 首付及税费详请咨询经纪人
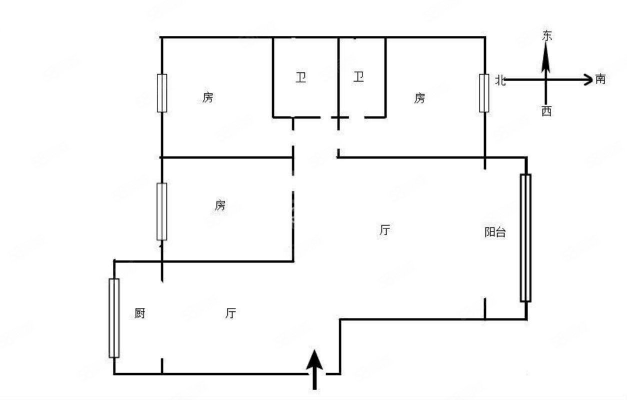
 3室2厅2卫
 低层(共30层)
120㎡ 
 精装修
南北
 2016年竣工/普通住宅
            










| 交易信息 | 产权性质商品房住宅 | 物业类型普通住宅 | 
| 产权年限70年产权 | 房本年限满五年 | |
| 参考预算首付0万,月供0元 | ||
| 发布信息 | 发布公司 宜春宜家地产中介有限公司 | |
| 营业执照91360900MA35UNTG9H | ||
| 发布时间2025-09-07 | ||
小区均价
小区户数
暂无
物业费用
暂无
暂无
绿化率
暂无